Il segreto della banca?
Il valore della tradizione

A Lüterswil (SO) è sorto un edificio bancario che si discosta in modo netto dall’immagine classica di un istituto finanziario: inserito nel contesto rurale, richiama uno stile architettonico regionale e contadino. Testo Archimedium Bonauer; Susanne Lieber

Il tetto a due spioventi con falda a timpano si ispira alle antiche case

Il paesaggio collinare del Bucheggberg solettese, chiamato «Buechibärg» nel dialetto locale, è un territorio rurale dell’Altopiano svizzero caratterizzato da incantevoli paesini, colline boschive, prati rigogliosi e campi variopinti. Di questo scenario da cartolina fanno parte anche le case contadine tipiche della regione, con il loro caratteristico tetto a due spioventi con falda a timpano, che hanno ispirato l’architettura della nuova sede della Spar- und Leihkasse Bucheggberg di Lüterswil.

Saldo radicamento regionale

La Spar- und Leihkasse Bucheggberg, la cui fondazione risale al lontano 1850, è una banca che vanta una clientela, sia privata che aziendale, radicata prevalentemente nella regione. Tuttavia, la precedente sede principale non era più in grado di soddisfare le esigenze odierne di clienti e collaboratori: percorsi interni, comfort, estetica, area clienti, qualità delle postazioni di lavoro e impiantistica lasciavano a desiderare. Inoltre, la configurazione degli spazi esistenti non consentiva un’evoluzione funzionale, poiché ogni margine di espansione era già stato interamente sfruttato. Persino i posti auto avevano iniziato a scarseggiare. Si è reso quindi necessario optare per la costruzione di un nuovo edificio.

La struttura, realizzata da un consorzio composto da cinque aziende di costruzioni in legno della regione, dispone ora di un’organizzazione degli spazi ottimizzata e di un rapporto costi-benefici di gran lunga superiore rispetto al passato. Ispirata nell’architettura e nei materiali alle case rurali della zona, la nuova sede della banca regionale costituisce un elemento distintivo all’ingresso del paese. Il progetto dell’edificio è scaturito da un concorso vinto dallo studio SSM Architekten di Soletta.

La sola fase di progettazione del nuovo edificio ha richiesto quattro anni e mezzo di lavoro. Fin dall’inizio la premessa fondamentale è stata quella di orientarsi alle peculiarità tipiche della regione – come le già menzionate case contadine con tetto a due spioventi con falda a timpano – reinterpretandole in chiave moderna. L’edificio della banca, sviluppato in senso longitudinale, è orientato direttamente verso la strada cantonale, con l’ingresso principale sul lato lungo. Un ampio piazzale antistante e un giardino frontale stilizzato, caratterizzato da aiuole rialzate rivestite in metallo e uno specchio d’acqua, rappresentano anch’essi un richiamo alle corti rurali della regione.

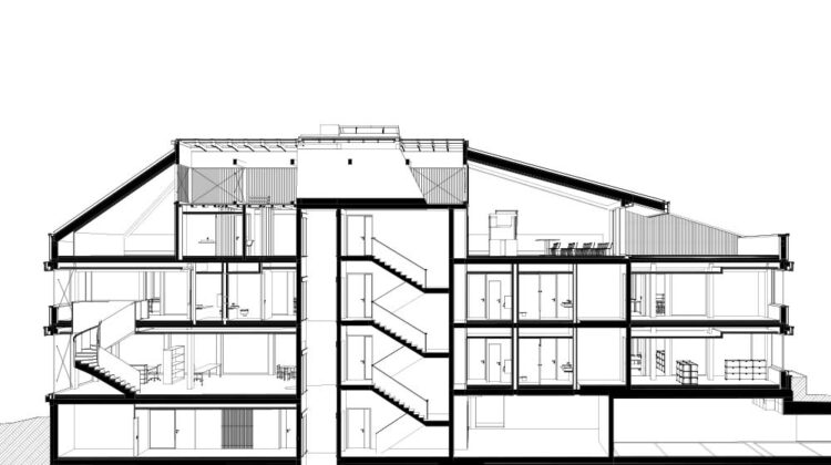
Il sottotetto – che ospita diversi eventi – offre all’occorrenza ampi margini di ampliamento.

Materiale edile dall’area circostante

Dal punto di vista strutturale, l’edificio presenta sostanzialmente una costruzione a telaio in legno, con il nucleo centrale e il seminterrato – che ospita i locali tecnici, i guardaroba, il caveau e l’autorimessa – realizzati in calcestruzzo a faccia vista. I pilastri portanti e le architravi, uniti mediante fazzoletti di rinforzo e bulloni calibrati per una connessione a perfetta tenuta, sono realizzati in legno lamellare di faggio (Fagus Suisse). I soffitti in legno massiccio sono stati invece realizzati in abete rosso, mentre per la facciata si è optato per l’abete di Douglas.

Ognuna delle cinque aziende regionali di costruzioni in legno coinvolte nel progetto ha contribuito in modi diversi alla sua buona riuscita: Rüti Holzbau AG ha prodotto gli elementi per pareti e facciate, Ernst Fink AG ha fornito gli elementi costruttivi, Mollet Holzbau AG si è occupata dei componenti del tetto, mentre Graber Holzbau + Sägerei AG e Heinz Aebi Holzbau AG hanno supportato il progetto mettendo a disposizione il proprio personale.

Vista su una delle sale riunioni al piano superiore, inondate di luce naturale e separate dal corridoio da

 

 

Per quanto riguarda il legno utilizzato, va sottolineato un dettaglio fondamentale: l’impiego esclusivo di legname proveniente dalla regione. Si tratta nello specifico di 1200 metri cubi di legno lunare che, proprio perché tagliato durante la fase di luna calante, vanta una resistenza eccezionale. Il legname è stato raccolto dall’azienda forestale Forstbetrieb Bucheggberg, pertanto a chilometro zero; questo ha permesso di ridurre le distanze di trasporto, influendo in modo positivo sul bilancio dell’energia grigia. «Lavorare con legno regionale ha significato per noi dover organizzare e ordinare il materiale con largo anticipo, così da poter rispettare i tempi di essiccazione», spiega Jürg Affolter, amministratore delegato e titolare di Rüti Holzbau AG, impresa responsabile della costruzione in legno.

Progettazione generosa degli interni

L’articolazione degli spazi offre molti scorci visivi e crea un collegamento armonioso tra l’area riservata agli impiegati e quella dedicata alla clientela. Gli uffici, disposti lungo il lato maggiore, sono accessibili tramite un ingresso separato per il personale situato su uno dei lati brevi dell’edificio. La spaziosa sala sportelli e una sala più ampia riservata agli incontri con i clienti si trovano sull’altro lato breve e quindi rivolte verso il paese.

La sala clienti comprende diverse aree ed è caratterizzata da vetrate a tutta altezza su tre lati, pensate per accogliere il paesaggio circostante a beneficio della clientela. Il servizio clienti personalizzato si svolge presso i desk situati a sud. Per colloqui confidenziali sono disponibili sale consulenze al piano superiore, accessibili tramite una scala imponente con parapetti pieni e tramite l’ascensore.

 

Eventi e incontri con la clientela si tengono nel sottotetto multifunzionale dotato di terrazza,
da cui si gode una vista panoramica particolarmente suggestiva e la visuale sul Bucheggberg. L’illuminazione naturale del sottotetto è garantita
da dodici finestre da tetto e da un lucernario zenitale.
Se un giorno la banca dovesse avere bisogno di espandersi, il piano sottotetto offre ancora ampi margini di ampliamento. La flessibilità spaziale ha costituito infatti un criterio fondamentale nella progettazione dell’edificio. Sarebbe quindi del tutto ipotizzabile, un domani, riconvertire completamente la struttura per ricavarne, ad esempio, appartamenti o case a schiera.

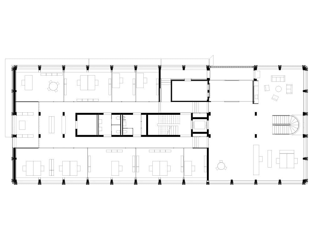
Planimetria piano terra.
Pianta del sottotetto.

La struttura portante a vista dell’edificio è in legno lamellare di faggio, con superfici trattate.

Rivestimento esterno traforato

Una particolarità estetica è la facciata in legno retroventilato di abete di Douglas con un motivo traforato di tre fori che richiama lo stemma di Buchegg.

rueti-holzbau.ch, fink-holzbau.ch, mollet-holz.ch, graberholz.ch, aebiholzbau.ch

Edifici bancari

Progetto: nuova costruzione Spar- und Leihkasse Bucheggberg, Lüterswil (SO)
Committente: Spar- und Leihkasse Bucheggberg SA, Lüterswil
Ultimazione: 2024
Architettura e direzione dei lavori di costruzione: SSM Architekten AG, Soletta
e Grenchen (SO)
Procedura: concorso indetto (1° posto)
Studio tecnico di ingegneria per l’edilizia in legno: Holzing Maeder GmbH, Evilard (BE)
Costruzione in legno (consorzio SLB): Rüti Holzbau AG, Rüti bei Büren (BE); Ernst Fink AG, Biezwil (SO); Mollet Holzbau AG, Unterramsern (SO); Graber Holzbau +
Sägerei AG, Messen (SO); Heinz Aebi Holzbau AG, Kyburg-Buchegg (SO)
Segherie: Ingold Holz AG, Lüterkofen-Ichertswil (SO); Sagibach Holz AG, Schnottwil (SO)
Costruzione: struttura a telaio con soffitti in legno massiccio, facciata retroventilata
Tipi di legno: faggio (costruzione: legno lamellare, Fagus Suisse),
abete/abete rosso (soffitti in legno massiccio), abete di Douglas (facciata)
Superficie di piano (SIA 416): 3176 m2

Fregi e lesene scandiscono la facciata in legno di abete di Douglas velato.
Sul lato sinistro dell’ingresso principale, in alcune fioriere rialzate, è stato allestito un piccolo giardino di.

Rüti Holzbau AG

L’azienda di Rüti bei Büren (BE) trae le sue origini da una carpenteria rilevata nel 1975. Dal 2019 l’attività opera con il nome di Rüti Holzbau AG: l’impresa, che conta 13 collaboratori, è attiva nei settori delle costruzioni in legno prefabbricate, della realizzazione di facciate e delle finiture d’interni. Amministratore delegato e comproprietario è Jürg Affolter (v. copertina). L’azienda non si considera solo un’impresa edile, ma anche un centro culturale: l’officina viene regolarmente utilizzata come sede di concerti, proiezioni cinematografiche e rappresentazioni teatrali. rueti-holzbau.ch