Lavoro di squadra2

L’anno scorso a Flums (SG) è stato ultimato un asilo quadruplo.
La struttura in legno compatta comprende quattro aree di gruppo dalla struttura identica
e non offre solo spazio per giocare, divertirsi e scatenarsi, ma anche
soprattutto spazio per sentirsi a proprio agio.

Testo Susanne Lieber Immagini Katia Rudnicki (kalena.ch), Claudia Reinert Progetti Eberle & Freuler Architekten GmbH

L’asilo quadruplo di Flums dimostra ancora una volta cosa rende così speciale il settore delle costruzioni in legno in Svizzera: la collaborazione all’insegna della collegialità. Se un’azienda non è in grado di gestire un progetto da sola, si procede alla collaborazione. È quello che è successo anche qui. In questo caso, la Junginger Holzbau AG di Walenstadt (SG) e la HebHolz AG di Flums Hochwiese (SG) hanno costituito un consorzio, dal momento che nessuna delle due aziende sarebbe stata in grado di gestire l’appalto da sola. La responsabilità della progettazione e della costruzione è stata affidata alla Junginger Holzbau AG, mentre la HebHolz AG si è occupata della lavorazione del legno; il montaggio è stato effettuato congiuntamente. «La nostra azienda si è aggiudicata la gara d’appalto, ma abbiamo coinvolto la HebHolz AG per fornirci supporto», spiega Peter Junginger e aggiunge con un sorriso: «Ci fa piacere sia stata coinvolta così anche un’azienda locale: noi infatti proveniamo dal comune vicino.»

Già in precedenza le due aziende avevano collaborato proficuamente nella costruzione di due case plurifamiliari. Le aziende si conoscono e si stimano a vicenda. Nel complesso, il team misto addetto alla costruzione dell’asilo era composto da dieci falegnami. In sintesi, il lavoro ha richiesto circa 1300 ore per la prefabbricazione, 350 ore per il montaggio, 500 ore per la finitura interna e 1200 ore per la costruzione delle facciate.

I lavori di montaggio sono potuti iniziare solo alla fine di febbraio. Si può dire che il momento non fosse ottimale: le condizioni meteorologiche invernali hanno costretto a fare una pausa di due giorni già dopo la costruzione del primo piano, prima di poter proseguire i lavori di costruzione. E, a causa delle giornate corte, è stato necessario svolgere gran parte del lavoro alla luce di riflettori. Ciononostante, dopo cinque giorni l’asilo era in piedi.
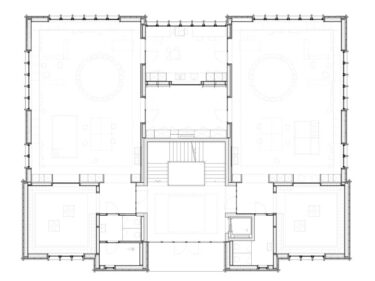
Quattro gruppi, quattro stanze,
una planimetria

Il nuovo edificio per l’asilo è stato progettato dallo studio di architetti di Flums Eberle & Freuler Architekten, che si è aggiudicato il concorso indetto nel 2023. È emerso chiaramente dal compito assegnato che l’edificio dovesse essere esplicitamente una costruzione in legno. L’edificio a struttura simmetrica e solo parzialmente interrato è accessibile da nord-ovest. Dall’ingresso si accede a sinistra e a destra a una luminosa sala di gruppo con guardaroba e servizi igienici. Tra le sale di gruppo sono collocati inoltre un’area di lavoro con cucina per il personale e uno spazio extra utilizzabile da entrambi i gruppi dell’asilo.

Attraverso la tromba delle scale, realizzata in costruzione massiccia, si accede al piano superiore con la terza e la quarta sala di gruppo. La planimetria è strutturata come al piano terra. La situazione architettonica di partenza è quindi la stessa per tutti e quattro i gruppi dell’asilo, ma naturalmente il carattere individuale delle sale di gruppo varia: in ognuna di esse sono appesi alle pareti lavoretti manuali differenti, mentre la «casetta dei giochi» a due piani, un enorme mobile in legno, viene utilizzata in modo leggermente diverso. E mentre alcuni sistemano le sedie in cerchio, altri decorano il tavolo per la festa di compleanno.

Struttura costruttiva
Le fondamenta dell’asilo sono costituite da una base piatta in cemento armato con seminterrato parziale e fondazione continua a strisce a profondità antigelo. Sopra si erge, a partire dal piano terra, una struttura portante in legno. Le pareti esterne sono costituite da una struttura a telaio in legno: i supporti a telaio (8/24 cm) sono dotati di un nucleo isolante (24 cm, Flumroc) e rivestiti all’interno con pannelli OSB, a loro volta provvisti di rivestimento in legno di abete bianco. Ai lati esterni delle pareti sono applicati come rivestimento della facciata dei pannelli in fibra morbida e un rivestimento in legno con scanalatura e pettine retroventilato (larice domestico).
Anche le pareti interne sono costituite da supporti a telaio (6/20 cm), ma sono combinate con un isolamento delle cavità (2-20 cm) e rivestite con pannelli OSB su entrambi i lati. La superficie visiva è in perline d’abete bianco verniciate in modo trasparente. Il pavimento del piano superiore, ossia il soffitto del piano intermedio, è costituito da elementi a travi cave prefabbricati con riempimento in ghiaia (7 cm), isolamento termico (2 cm di lana di roccia), isolamento acustico anticalpestio (3 cm di lana minerale) e un sottofondo (7 cm). Questo è stato levigato e lasciato a vista nei locali accessibili al pubblico e nelle zone dei sanitari. Nelle sale di gruppo il sottofondo è stato rivestito con linoleum.
Il tetto a padiglione con cofano centrale è un tetto a trave convenzionale, un tetto freddo ventilato con cassonetto a incastro sul lato interno. La mansarda viene utilizzata come locale tecnico e ripostiglio.

Dal punto di vista logistico
non è stato un gioco da ragazzi
Alla domanda qual è stata la sfida più grande in questo progetto di costruzione dell’asilo, Peter Junginger spiega: «La principale sfida nella fase preparatoria è stata soprattutto la logistica. La nostra azienda non è particolarmente grande e, di conseguenza, nemmeno la nostra officina è enorme. Abbiamo dovuto continuamente cercare un posto dove depositare i nostri materiali edili.» Per questo motivo, la maggior parte di questi sono stati immagazzinati temporaneamente su pianali al di fuori dei locali aziendali. Anche nel cantiere c’era poco spazio, tanto più che la scuola nelle vicinanze è rimasta attiva anche durante la fase di costruzione. «Avere tutto al posto giusto al momento giusto non è stato affatto facile», aggiunge Junginger, capo senior. Ma grazie a una pianificazione accurata e a un team affiatato sul posto, il progetto di costruzione è stato portato a termine secondo i piani. Nell’estate del 2024 l’asilo quadruplo è stato consegnato al comune di Flums.

A proposito di passaggio di consegne: nel gennaio 2026, Peter Junginger tramanderà la Junginger Holzbau AG alla generazione successiva, quando suo figlio, il 37enne Patrick, rileverà l’azienda a conduzione familiare, che vanta 90 anni di storia.
junginger-holzbau.ch, hebholz.ch

Asilo quadruplo a Flums

Progetto: Nuova costruzione asilo, Flums (SG)
Committente: Comune di Flums
Completamento (messa in funzione): agosto 2024
Architettura: Eberle & Freuler Architekten GmbH, Flums
Studio tecnico di ingegneria per l’edilizia in legno: Liesch Bauingenieure AG, Coira (direzione del progetto: Michael Inauen)
Costruzione in legno (consorzio): Junginger Holzbau AG, Walenstadt (SG); HebHolz AG, Flums
Costruzione/struttura portante: pareti esterne struttura a telaio, elementi a supporto, soffitti prefabbricati (elementi a cassette vuote)
Tipo di legno (legno da costruzione): abete rosso/bianco, BSH, DUO, Kerto Q
Tipo di legno (facciata): larice svizzero
Tipo di legno (finiture interne): perline di abete bianco, verniciate in modo trasparente
Superficie lorda di pavimento (piano terra e piano superiore): 880 m2
Volume dell’edificio (piano terra e piano superiore): 3935 m3
Costi totali: CHF 4,98 milioni (di cui lavori di carpenteria: CHF 760 000)

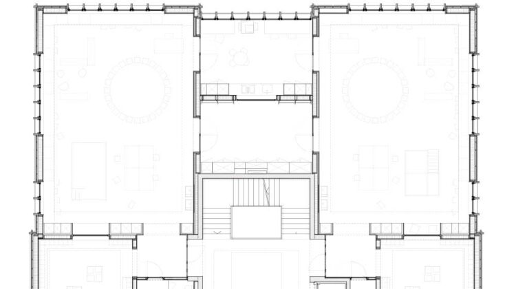
Su ogni piano, tra le grandi sale di gruppo, c’è uno spazio aggiuntivo che può essere utilizzato in modo flessibile da entrambi i gruppi.
Vista da una delle quattro sale di gruppo verso l’area guardaroba antistante e i servizi igienici. Le pareti e le strutture sono realizzate in perline di abete bianco verniciate in modo trasparente.
Un luogo di benessere per i più piccoli: il legno gioca un ruolo importante anche nell’ar

Junginger Holzbau AG

La carpenteria è stata fondata nel 1935 da Johann Junginger ed è ora gestita alla terza generazione. Suo figlio René ha diretto l’azienda fino al 1995, cedendola poi al figlio Peter Junginger, che gestisce l’azienda di famiglia ancora oggi. Peter Junginger è nato nel 1962 a Walenstadt, dove
si trova da sempre anche la sede dell’azienda. Dopo l’apprendistato da falegname presso il padre,
ha proseguito gli studi alla Scuola superiore del legno di Bienne. Le attività della carpenteria sono incentrate
per metà su ristrutturazioni e risanamenti
e per l’altra metà su costruzioni in legno di elementi, facciate e isolamenti. La futura generazione
dell’azienda è già pronta a subentrare:
Patrick Junginger (*1989), carpentiere qualificato e uno dei due figli di Peter Junginger, a gennaio 2026 sarà a capo della Junginger Holzbau AG. junginger-holzbau.ch