«Legno lavorato quassù»

Il legno di questi tre edifici non è mai stato altrove. La filosofia dei committenti, volta a gestire un centro seminari sostenibile tra le montagne dell’Eggberge, è stata realizzata in piena coerenza dalla Gotthard Holzbau GmbH di Flüelen.

«Quando si lavora il legno sono tanti gli errori che si possono commettere» afferma Hermann Herger. I tronchi devono essere già tagliati in base al progetto, stratificati e conservati a regola d’arte. Per la Gotthard Holzbau GmbH, i guardiaboschi hanno abbattuto e lavorato circa 250 tronchi sulle montagne dell’Eggberge, a 1500 metri sul livello del mare e a 1000 metri al di sopra dell’Axenstrasse nel Canton Uri – l’equivalente di circa un terzo del legno per l’intero progetto.
Per Hermann Herger l’utilizzo di legno autoctono ha rappresentato fin dall’inizio un aspetto di primaria importanza. L’amministratore della Gotthard Holzbau GmbH di Flüelen (UR) ha radici nell’Eggberge e conosce molte persone della località che rientra nel comune di Altdorf. Martin Reichle e Ruth Koch erano soliti trascorrere qui le loro vacanze. Quando il terreno con la casa per vacanze è stato messo in vendita hanno colto al volo l’occasione, dando così libero sfogo al loro sogno di creare un luogo di incontro di cui essere i custodi.
Il progetto del Berglodge nasce da un’idea della Küchler Architektur di Sarnen. L’edificio esistente ha lasciato il posto a tre chalet di dimensioni proporzionate allineati lungo il sentiero i quali, con il loro volume discreto, si inseriscono armoniosamente tra le case circostanti e il paesaggio montano. Caratteristiche degne di nota sono l’altezza contenuta degli edifici, l’inclinazione del tetto adattata, le facciate in legno e pietra e un basso consumo energetico.

Legno e pietra sono i materiali predominanti. Lo sviluppo del progetto cromatico e illuminotecnico è stato gestito da un’architetta d’interni.
A seconda del corso, si porta il focus all’interno o lo sguardo all’esterno sul magnifico panorama.
Si dorme in alto, a 82 centimetri dal pavimento. Gli arredi sono realizzati in legno lunare dalle mani del falegname.

Abeti rossi centenari

I committenti, rappresentati da qui in avanti dalla Imuri AG, non hanno tardato a contattare la Gotthard Holzbau affidando all’azienda i lavori di costruzione in legno e di coordinamento. Con simpatica maestria, Hermann Herger ha convinto i committenti a costruire l’intero edificio in legno. I valori di connessione, vitalità e ambiente, trasmessi nel centro seminari, sono così penetrati fino in profondità nella struttura dell’edificio. Herger, che è anche il presidente dell’ufficio patriziale di Flüelen, conosce il potenziale della «sua» foresta e cerca quindi di reperire quanto più legno possibile dalle immediate vicinanze del progetto. Naturalmente i guardiaboschi abbattono il legno secondo il calendario lunare, come fanno da generazioni, e oggi gli ospiti possono vedere nelle rifiniture interne gli stretti anelli annuali del legno di abete rosso.
«Il luogo, l’altitudine, lo sviluppo elevato e lento degli abeti rossi, spesso per un centinaio di anni, sono i requisiti migliori per un legno di ottima qualità», afferma Hermann Herger. «L’abbattimento al giusto momento e l’essiccazione all’aria aperta sono stati per noi di fondamentale importanza. Tutto è successo quassù. Il legno non ha mai lasciato la montagna.» Quando presenta queste caratteristiche, il legno viene definito legno lunare. Si ritira e si gonfia meno, necessitando così di meno accorgimenti contro funghi e coleotteri.
Per adattare le esigenze dei committenti al settore alberghiero, i costruttori hanno chiesto assistenza allo studio di architettura d’interni G&A Architekten AG di Altdorf. Christine Wolf è l’architetta d’interni che si è occupata del progetto esecutivo, dell’arredamento, dell’illuminazione e delle procedure alberghiere. Oggi la specialista del costruire nel costruito lavora in proprio. «Questa collaborazione mi ha permesso di imparare moltissimo», racconta Hermann Herger. «Ad esempio in fatto di illuminazione. Per me la luce era solo una lampadina, mentre ora mi accorgo della differenza che può fare una buona illuminazione e dei punti luce scelti con cura.»

Accesso principale con la funivia

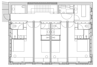
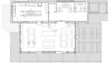
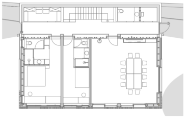
I tre chalet sono diversi uno dall’altro: c’è quello degli spazi comuni con la cucina della Bergstube, lo chalet centrale con due ampie sale per seminari e lo chalet con le camere, collegati tra loro da un sentiero coperto all’aria aperta. Le camere offrono agli ospiti la possibilità di dormire senza elettrosmog. A tale scopo, il WiFi viene spento dalle 22:00 alle 06:00. La corrente può essere disattivata dagli ospiti in camera. Per la luce è disponibile una lanterna ricaricabile.
Il primo edificio è stato costruito nel luglio del 2021. Gli elementi sono stati prefabbricati nell’azienda di Flüelen con legno svizzero regionale. Fanno eccezione solo le travi incollate, realizzate a Küssnacht dalla Schilliger Holz AG. Il collegamento principale all’Eggberge, dove vivono circa 90 persone, è per mezzo di una funivia a va e vieni con cabine per 15 persone. Una stradina ripida sale lungo la montagna fino a diventare una strada sterrata ancora più scoscesa. È percorribile solo con autorizzazione e trazione a quattro ruote motrici, e viene utilizzata per la gestione mirata del bosco di protezione. Hermann Herger e i suoi collaboratori addetti alle costruzioni in legno e alla silvicoltura utilizzano Whatsapp per regolarsi sulla circolazione. «Manovrare con un carico di legno a bordo non è proprio possibile.» Gli elementi, tuttavia, sono stati prodotti senza limitazioni di peso e dimensioni per il trasporto. Un mese più tardi è seguita la costruzione del secondo edificio, e a settembre quella del terzo. Poi si è trattato di portare su tutto il materiale per la fase di ampliamento invernale. Con la neve infatti, il trasporto non è praticabile. La Gotthard Holzbau era presente in loco mediamente con tre collaboratori. Sono stati rivestiti in calcestruzzo solo la soletta, il muro di contenimento a ridosso della montagna e la tromba delle scale. La struttura portante, i soffitti e le pareti sono interamente in legno. I tramezzi hanno uno spessore di nove centimetri, con due assi di abete rosso massiccio di quattro centimetri con frapposto un pannello antincendio.
Il rivestimento delle pareti esterne è stato realizzato in loco con legno di montagna grezzo e non trattato proveniente dal vicino bosco del Gruonwald, lasciato essiccare per sei mesi all’aria di montagna. Anche il legno degli interni non è stato trattato. Solo sulle superfici che vengono toccate e pulite spesso, come ad esempio quelle della cucina, è stato applicato un trattamento protettivo. Hermann Herger è visibilmente orgoglioso che sia stato possibile impiegare legno lunare della regione. Ha particolarmente a cuore il fatto che i lavori vengano svolti da aziende regionali con l’impiego di legno svizzero. Qui la cooperazione si basa spesso sulla fiducia: lui sceglie gli artigiani che fanno la loro proposta e, se tutto torna, l’offerta si tramuta in una conferma dell’ordine che funge da presupposto per il lavoro.

Tre volumi dalle dimensioni proporzionate rispettano il luogo e l’ambiente circostante. A sinistra lo chalet degli spazi comuni, al centro le sale per seminari, a destra si dorme.

I falegnami sono rimasti in montagna

La vernice protettiva è stata utilizzata dal falegname anche per alcuni mobili. Insieme all’architetta d’interni ha progettato e costruito i tavoli, gli scaffali e gli arredi nei locali di soggiorno e tutti gli arredi delle camere. I letti sono alti e dotati di cassetti per le lenzuola. Anche se il vero motivo per dormire ad un’altezza di 82 centimetri è la vista. Tutte le camere sono rivolte a ovest e offrono uno splendido panorama sulle montagne e sul lago di Uri. Nel suo lavoro l’ebanista Toni Infanger ha inserito numerosi dettagli: una cavità richiudibile con le prese, un armadietto per la lanterna, appendini, staffe e maniglie delle porte realizzate con rami di scarto. Elementi nascosti e superfici lisce. Sul soffitto della cucina sono incastonate immagini di piante medicinali locali. Infanger non è dovuto scendere dalla montagna per realizzare i suoi mobili. Nell’Eggberge ha trovato una nuova funzione e presso la lodge è la persona a cui rivolgersi per questioni riguardanti la casa, gli impianti tecnici e l’artigianato.
Il Berglodge dispone di 14 camere singole e 9 camere doppie oltre a una suite. 37 si riferisce al soggiorno minimo espresso in ore, che equivale a minimo due notti. Anche questo un aspetto volto alla gestione sostenibile: meno pulizia, meno biancheria, meno stress. Il Berglodge vuole essere un luogo in cui rifugiarsi nella natura, per riflettere e per creare scambi tra le persone. Se si chiede a Hermann Herger cosa gli ha procurato più gioia, risponde: «Essere riuscito a risvegliare nei committenti una passione per il legno.» E aggiunge: «Peccato che i lavori di costruzione siano già finiti.»

berglodge37.com
kuechler-architektur.ch
ga-architekten.ch

Struttura del tetto

1. Coperture Prefa
2. Listellatura in legno di montagna 30 mm
3. Controlistellatura in legno di montagna 80 mm
4. Tappetino sottotetto Albert senza giunti
5. Pannello isolante in legno Gutex 60 mm
6. Travatura in legno di montagna 220 x 60 mm
7. Isolamento in cellulosa 220 mm
8. Barriera al vapore Variovap
9. Perline in legno di montagna, piallato, non trattato 20 mm
10. Travi a vista in legno di montagna 180 x 100 mm
11. Lamelle decorative in legno di montagna 75 mm
12. Fregio ornamentale in larice 160 mm

Facciata

13. Cassero in legno di montagna grezzo, non trattato 24 mm
14. Retroventilazione in legno di montagna 50 mm e controlistellatura in legno di montagna 30 mm
15. Teli ermetici al vento Ampack
16. Gutex Multitherm 60 mm
17. Isofloc LM 200 mm
18. Piastra statica, barriera al vapore 15 mm
19. Listelli in legno di montagna 40 mm
20. Perline in legno di montagna, piallato, non trattato 18 mm
21. Rivestimento in pietra artificiale

Struttura del pavimento al piano terra:

22. Parquet in rovere 16 mm
23. Elemento del massetto a secco 25 mm
24. Isolamento di sistema Trobatherm Oeko 20 mm
25. Lastre da giardino 40 mm
26. Pannello in truciolato 22 mm
27. Solaio nervato 200 mm
28. Isolamento in lana di roccia 80 mm
29. Ghiaia 90 mm
30. Pannello a triplo strato non trattato 27 mm

Gotthard Holzbau GmbH

Hermann Herger, carpentiere e falegname professionale, ha fondato la Gotthard Holzbau GmbH nel 2001. L’azienda era ubicata inizialmente a Schattdorf ma, per via di danni causati dal maltempo e la necessità di maggiore spazio, nel 2016 si è trasferita a Flüelen. Il carpentiere dà oggi lavoro a 35 collaboratori, di cui otto carpentieri apprendisti. L’impresa di costruzioni in legno vanta referenze per nuove costruzioni e ristrutturazioni, in particolare per edifici di interesse storico. Il 55enne Hermann Herger può contare sul sostegno della sua famiglia: il figlio lavora come carpentiere, mentre la moglie e la figlia si occupano dell’amministrazione. Herger è presidente dell’ufficio patriziale di Flüelen, responsabile per il mantenimento e la gestione dei boschi di protezione.
gotthardholzbau.ch